Villa Lante Villa Wasserlauf Italienische Kunst

Villa Lante Villa Wasserlauf Italienische Kunst

Villa I Tatti The Harvard Center For Italian Renaissance Studies Florence Italienischer Garten Gartendesign Ideen Garten

Villa I Tatti The Harvard Center For Italian Renaissance Studies Florence Italienischer Garten Gartendesign Ideen Garten

Solosequenosenada Palacio Te En Mantua Mantua Northern Italy Renaissance

Solosequenosenada Palacio Te En Mantua Mantua Northern Italy Renaissance

Topiary Knot Garden Garden Layout Garden Design Layout Garden Planning Software

Topiary Knot Garden Garden Layout Garden Design Layout Garden Planning Software

Schoner Garten 1 Grune Renaissance Garten Grune Renaissance Schoner Garten Grune Renaissance Garten Grundriss Garten Gewachshaus Gartendesign Ideen

Schoner Garten 1 Grune Renaissance Garten Grune Renaissance Schoner Garten Grune Renaissance Garten Grundriss Garten Gewachshaus Gartendesign Ideen

Villa Monatskonkurrenz Februar 1875 Klassische Architektur Architektur Skizze Villa

Villa Monatskonkurrenz Februar 1875 Klassische Architektur Architektur Skizze Villa

Villa Monatskonkurrenz Februar 1875 Klassische Architektur Architektur Skizze Villa

Botanischer Garten Und Botanisches Museum Berlin Dahlem Botanischer Garten Berlin Garten Und Berlin Dahlem

Botanischer Garten Und Botanisches Museum Berlin Dahlem Botanischer Garten Berlin Garten Und Berlin Dahlem

Laubengang Bilder Und Fotos Garten Grundriss

Laubengang Bilder Und Fotos Garten Grundriss

Pin On Churches In Rome

Pin On Churches In Rome

Titel Palast Des Grafen Von Cholmondeley Tor Von Burlington House In Piccadilly Ansichten Classic Building Architecture Burlington House

Titel Palast Des Grafen Von Cholmondeley Tor Von Burlington House In Piccadilly Ansichten Classic Building Architecture Burlington House

Villa Lante V Banyajya Dachterrasse Gestalten Coole Ideen Ideen

Villa Lante V Banyajya Dachterrasse Gestalten Coole Ideen Ideen

Andrea Palladio Palazzo Valmarana 1565 Vicenza Italy Plan And Elevation From Palladio S Quattro Libri De Andrea Palladio Diagram Renaissance Architecture

Andrea Palladio Palazzo Valmarana 1565 Vicenza Italy Plan And Elevation From Palladio S Quattro Libri De Andrea Palladio Diagram Renaissance Architecture

Pin Von K K Auf Hotel Hotel Munster Grundriss Hotel

Pin Von K K Auf Hotel Hotel Munster Grundriss Hotel

How To Be Inspired French Greenhouse Heather Bullard In 2020 Renaissance Gardens Pergola Patio

How To Be Inspired French Greenhouse Heather Bullard In 2020 Renaissance Gardens Pergola Patio

Garten Landschaftsbau Design Ideen In 2020 Backyard Landscaping Designs Landscape Design Garden Layout

Garten Landschaftsbau Design Ideen In 2020 Backyard Landscaping Designs Landscape Design Garden Layout

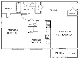
Renaissance Kuala Lumpur Hotel New Deluxe 40 Sqm 439 Sqft Deluxe Hotel Kuala Lumpur Renaissance Hotel Floor Plan Hotel Room Design Hotel Bedroom Design

Renaissance Kuala Lumpur Hotel New Deluxe 40 Sqm 439 Sqft Deluxe Hotel Kuala Lumpur Renaissance Hotel Floor Plan Hotel Room Design Hotel Bedroom Design

Edgardo Renaissance Of Courtyard Bungalow House Pinoy House Designs Pinoy House Designs In 2020 Three Bedroom House Small House Design Three Bedroom House Plan

Edgardo Renaissance Of Courtyard Bungalow House Pinoy House Designs Pinoy House Designs In 2020 Three Bedroom House Small House Design Three Bedroom House Plan

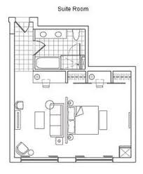
Pin By Flori On Plan Hotel Room Design Plan Hotel Floor Plan Hotel Room Plan

Pin By Flori On Plan Hotel Room Design Plan Hotel Floor Plan Hotel Room Plan

Serpentine Pavilion 2011 Peter Zumthor Peter Zumthor Architektur Serpentine Pavilion Serpentine Gallery Pavilion

Serpentine Pavilion 2011 Peter Zumthor Peter Zumthor Architektur Serpentine Pavilion Serpentine Gallery Pavilion

Dreams Come True Garten Impressionen Eingang Garten Pflanzen Vorgarten Garten

Dreams Come True Garten Impressionen Eingang Garten Pflanzen Vorgarten Garten

Zapiekanka Restaurant In Warsaw With Painted Steel Frames By Mfrmgr Dezeen 28 1000 Gif 1000 906

Zapiekanka Restaurant In Warsaw With Painted Steel Frames By Mfrmgr Dezeen 28 1000 Gif 1000 906

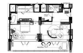
Image Result For Marriott Renaissance Room Layout Kucuk Ev Planlari Otel Ic Mekanlari Ev Planlari

Image Result For Marriott Renaissance Room Layout Kucuk Ev Planlari Otel Ic Mekanlari Ev Planlari

Floor Plan Her Dining Room Is An Art Studio Wohnungsgrundriss Wohnungsgrundrisse Grundriss

Floor Plan Her Dining Room Is An Art Studio Wohnungsgrundriss Wohnungsgrundrisse Grundriss

3

3

Planirovka Kvartiry 27 Kv M 19 Tys Izobrazhenij Najdeno V Ya Hotel Floor Plan Hotel Room Plan Hotel Room Design

Planirovka Kvartiry 27 Kv M 19 Tys Izobrazhenij Najdeno V Ya Hotel Floor Plan Hotel Room Plan Hotel Room Design

Utopisch Model Renaissance Haus Ohne Eigenschaften Architecture Architecture House Architect

Utopisch Model Renaissance Haus Ohne Eigenschaften Architecture Architecture House Architect

Formal Kitchen Gardens Bauerngarten Garten Garten Landschaftsbau

Formal Kitchen Gardens Bauerngarten Garten Garten Landschaftsbau

C3 Isbu Residence 3 Bed 3 Bath With Study And Kids Lounge Container House Plans Shipping Container House Plans Shipping Container Home Designs

C3 Isbu Residence 3 Bed 3 Bath With Study And Kids Lounge Container House Plans Shipping Container House Plans Shipping Container Home Designs

C3 Isbu Residence Container House Plans Shipping Container House Plans Shipping Container Home Designs

C3 Isbu Residence Container House Plans Shipping Container House Plans Shipping Container Home Designs

C3 Isbu Residence Jpg 1421 1542 Container House Plans Shipping Container House Plans Shipping Container Home Designs

C3 Isbu Residence Jpg 1421 1542 Container House Plans Shipping Container House Plans Shipping Container Home Designs

Dolce Plan Aliana Classic Kingston And Renaissance Richmond Tx 77407 Zillow Home Design Floor Plans Dream House Plans Country Floor Plans

Dolce Plan Aliana Classic Kingston And Renaissance Richmond Tx 77407 Zillow Home Design Floor Plans Dream House Plans Country Floor Plans

Maisons Neuves Avec Toits Plats A Vendre Construction Louis Seize Modernhomedesignideas Architectural House Plans Sims House Design Contemporary House Plans

Maisons Neuves Avec Toits Plats A Vendre Construction Louis Seize Modernhomedesignideas Architectural House Plans Sims House Design Contemporary House Plans

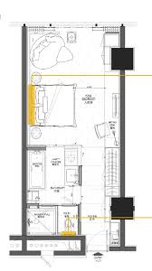
Xiamen Luxury Collection Hotel Project Hotel Room Design Hotel Room Plan Luxury Hotel Room

Xiamen Luxury Collection Hotel Project Hotel Room Design Hotel Room Plan Luxury Hotel Room

Gartengestaltung Gartenideen Garten Ideen Gestaltung In 2020 Garten Ideen Gartengestaltung Ideen Gartendekoration

Gartengestaltung Gartenideen Garten Ideen Gestaltung In 2020 Garten Ideen Gartengestaltung Ideen Gartendekoration

White Agapanthus And Anemone Japonica Honorine Jobert Garden Renaissance Garten Design

White Agapanthus And Anemone Japonica Honorine Jobert Garden Renaissance Garten Design

Bauen Sie Einen Gemusegarten In Hochbeeten An Vegetable Garden Raised Beds Building A Raised Garden Vegetable Garden Design

Bauen Sie Einen Gemusegarten In Hochbeeten An Vegetable Garden Raised Beds Building A Raised Garden Vegetable Garden Design

Landhaus Garten Elemente Gartentur Eisenrahmen Gartentore Schmiedeeiserne Gartentore Und Gartenturen

Landhaus Garten Elemente Gartentur Eisenrahmen Gartentore Schmiedeeiserne Gartentore Und Gartenturen

Tiefer Gelegene Terrasse Vor Den Grossen Glas Schiebeturen Die Ins Haus Fuhren Mit Sonnensegel Und Rundem Tisch Eine Terrasse Garten Garten Terrasse

Tiefer Gelegene Terrasse Vor Den Grossen Glas Schiebeturen Die Ins Haus Fuhren Mit Sonnensegel Und Rundem Tisch Eine Terrasse Garten Garten Terrasse

Crowne Plaza Kunming Hotel Floor Plan Hotel Room Design Hotel Room Plan

Crowne Plaza Kunming Hotel Floor Plan Hotel Room Design Hotel Room Plan

49 Simple Easy And Cheap Diy Garden Landscaping Ideas Landscapeideas Diygardenlandscaping Gardenlandsca Easy Garden Easy Landscaping Front Yard Landscaping

49 Simple Easy And Cheap Diy Garden Landscaping Ideas Landscapeideas Diygardenlandscaping Gardenlandsca Easy Garden Easy Landscaping Front Yard Landscaping

Bungalow Grundriss Ebenerdig Mit Flachdach Architektur 4 Zimmer 130 Qm Uform Offen Mit Erker Haus Bauen Ideen Fertighaus Bungalow Ambience Haus Grundriss

Bungalow Grundriss Ebenerdig Mit Flachdach Architektur 4 Zimmer 130 Qm Uform Offen Mit Erker Haus Bauen Ideen Fertighaus Bungalow Ambience Haus Grundriss

Potager Garden Design Ideas Plans Layout And Tips For Beginners Gartenplanung Garten Design Garten Grundriss

Potager Garden Design Ideas Plans Layout And Tips For Beginners Gartenplanung Garten Design Garten Grundriss

Renaissance Suzhou Taihu Hotel 1 Bedroom Suite 1 King Mountain View Hotel Suite Plan Hotel Floor Plan Suite Room Hotel

Renaissance Suzhou Taihu Hotel 1 Bedroom Suite 1 King Mountain View Hotel Suite Plan Hotel Floor Plan Suite Room Hotel

Weligama Bay Marriott Resort Sri Lanka Hotel Room Design Bedrooms Hotel Floor Plan Hotel Room Plan

Weligama Bay Marriott Resort Sri Lanka Hotel Room Design Bedrooms Hotel Floor Plan Hotel Room Plan

Source : pinterest.com